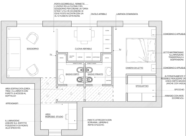
L'intervento di ristrutturazione permette di dare un volto nuovo all'appartamento adattandolo alle esigenze contemporanee. Con limitate demolizioni dei tramezzi esistenti si otterranno nuovi ambienti e nuovi spazi. Si prevede la sostituzione delle porte attuali con modelli scorrevoli e la sostituzione degli infissi. La conformazione attuale rimarrà principalmente la stessa: bilocale con cucina. Tuttavia le principali novità sono:
- valorizzazione dell'ingresso come studio e libreria con illuminazione studiata per ampliare la percezione dello spazio
- realizzazione di soppalchi (fino a 7mq) con numerosi accessi dalle diverse stanze. Comodi ed efficaci per essere utilizzati come ripostiglio.
- valorizzazione della camera da letto con la realizzazione di uno spogliatoio e di un bagno privato dove potrà anche essere alloggiata la lavatrice
- particolare attenzione sarà dedicata alla zona giorno con la possibilità di utilizzare il soggiorno e la cucina alternativamente come spazi separati o uniti tramite l'ausilio di porte scorrevoli. L'intenzione è permettere un utilizzo privato e quotidiano della cucina abitabile e in occasioni straordinarie la possibilità di aprire un tavolo da 10 posti.
- illuminazione e impianto elettrico di tutto l'appartamento studiato per valorizzare e migliorare la funzionalità degli ambienti

Planimetria dello stato di Fatto
Progetto di ristrutturazione (clicca per ingrandire)
Puoi rimanere anonimo ma non dimenticare di scrivere il comune dove si trova l'immobile.
Inserisci la tua e-mail, non verrà pubblicata, ma in questo modo riceverai una risposta direttamente sulla tua posta elettronica.
Sei un tecnico? Puoi partecipare e rispondere alle domande: ottieni le credenziali per moderare