Questo appartamento si trova a Roma nello storico quartiere di Testaccio, tra la Piramide Cestia e il Tevere. Testaccio venne costruito alla fine del '800 per gli operai e i manovali che lavoravano allo sviluppo ed alla crescita della nuova Roma, città capitale dopo l'unità d'Italia.
L'atmosfera che si vive a Testaccio è tipicamente romana e popolare. L'appartamento era in buona parte originale e presentava ancora i pavimenti originali colorati di forma esagonale
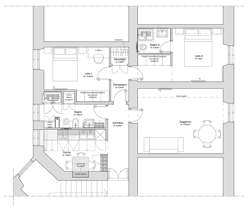
L'appartamento si trova al quinto ed ultimo piano di un edificio in muratura portante, acquistato ad un ottimo prezzo dalla proprietaria che ha partecipato con grande passione alla progettazione e alla scelte architettoniche. La proprietara desiderava una casa semplice, comoda, versatile, con una cucina indipendente, due bagni, due camere da letto e un soggiorno.
Per questo la distribuzione degli spazi originali è stata in buona parte mantenuta. Le scelte principali di distribuzione degli ambienti sono state la realizzazione di un secondo bagno nella camera da letto principale, l'apertura della cucina verso l'ingresso e l'allargamento del bagno principale.
La casa è stata acquistata ad un prezzo vantaggioso per due motivi: era completamente da ristrutturare e non aveva l'ascensore. Dopo la ristrutturazione e l'installazione dell'ascensore il suo valore è aumentato notevolmente rendendo l'investimento per i lavori particolarmente vantaggioso anche perchè supportato dagli incentivi fiscali per "ristrutturazione edilizia" e "riqualificazione energetica"

Il bagno è stato allargato ricostruendo la parete di sinistra (confinante con la cucina) e inserendo la doccia in una nicchia ottenuta nella parete di destra

La cucina è stata ridotta spostando la parete che confina con il bagno di circa 40 cm (lo spostamento della parete si nota guardando la finestra). E' stato tutto progettato per massimizzare la luminosità, la semplicità e la pulizia.

Questo soggiorno è il luogo del relax, della lettura, del ritorno a casa dopo una giornata di lavoro. Gli elementi che caratterizzano la progettazione di questo spazio sono la scelta dell'illuminazione (diffusa sopra la mensola, puntuale per le applique, concentrata per le lampade sul tavolo), la realizzazione di una libreria in cartongesso e la scelta di arredare con delle tonalità pastello

Camera da letto


Pianta con segnate in colore giallo le demolizioni e in rosso le costruzioni

Disegni tecnici per la progettazione della cucina

Cucina. I ripiani sono stati realizzati per schermare la cucina dal corridoio di ingresso (in fondo si nota la porta d'ingresso alla casa): un'ottima soluzione per risolvere il problema dei soliti corridoi bui e claustofobici. Con questa apertura si è potuto illuminare il corridoio e allargare la visuale appena si entra nell'appartamento

Il cortile interno di un complesso di edifici residenziali a Testaccio - Roma

Libreria in cartongesso in soggiorno

La camera da letto principale con il bagno indipendente

Piccolo bagno esclusivo della camera da letto, senza bidet ma con doccino
Puoi rimanere anonimo ma non dimenticare di scrivere il comune dove si trova l'immobile.
Inserisci la tua e-mail, non verrà pubblicata, ma in questo modo riceverai una risposta direttamente sulla tua posta elettronica.
Sei un tecnico? Puoi partecipare e rispondere alle domande: ottieni le credenziali per moderare